Bilocale in vendita

Castelverde, V. Dosso Baroardo - Dosso Baroardo
€ 105.000
2 locali 2 locali
92 Mq 92 Mq
1 bagno 1 bagno

Bilocale in vendita

Castelverde, V. Dosso Baroardo - Dosso Baroardo

Descrizione annuncio

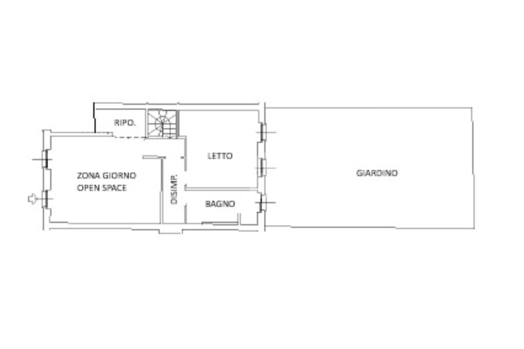
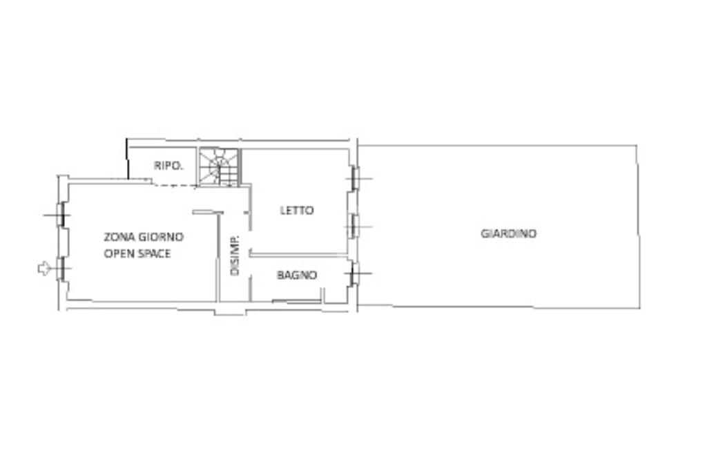
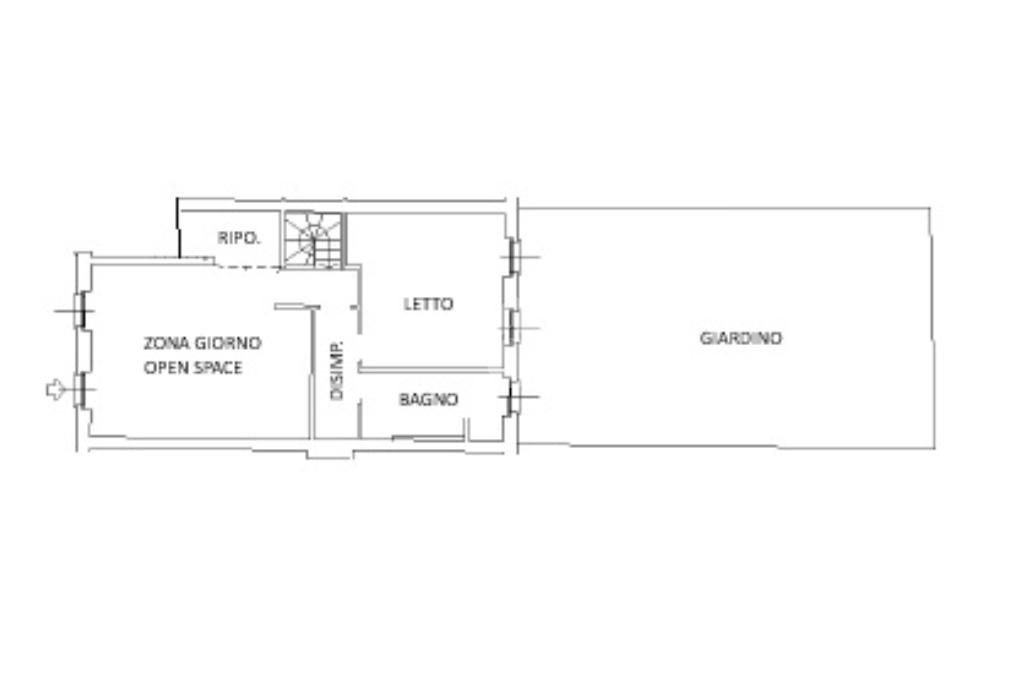
BILOCALE NUOVO CON GIARDINO

Situato in cascinale completamente ristrutturato, nel comune di Castelverde, in una zona servita da tutte le tipologie di scuola, banche, negozi, farmacia ed uffici.

Ideale per chi vuole abitare in una zona immersa nel verde, ma ben collegata grazie alla presenza della pista ciclabile.

Appartamento nuovo con giardino privato di circa 50 mq, in cascinale completamene ristrutturato.

Ingresso sul soggiorno openspace, una camera da letto matrimoniale e bagno con portafinestra in affaccio al giardino.

L’abitazione è collegata da una scala interna al piano interrato dove è presente la taverna.

Accesoriato da garage e posto auto.

Il trilocale è stato ultimato nel 2024 e presenta finiture come riscaldamento a pavimento, caldaia a condensazione e boiler di accumulo con pompa di calore.

Pronto da abitare e subito disponibile.

Per maggiori informazioni vi aspettiamo nel nostro ufficio di Via Ghinaglia 95 b dove un consulente immobiliare sarà a Vostra disposizione.
ORARI DI APERTURA AL PUBBLICO: Dal Lunedì al Venerdì 9.00-12.30 - 14.00-19.30. Sabato 9.00-12.30.
Contatti:
TELEFONO: 037231699
WHATSAPP: 3892342494
Consigliamo ai nostri affezionati di seguirci anche su Facebook ed Instagram, abbiamo un profilo dove ci piace condividere iniziative. Per una ricerca più semplice scaricate dal vostro smartphone, iphone oppure tablet l'applicazione gratuita Tecnocasa. In tempo reale e a portata di click avrete sempre a vostra disposizione le nostre proposte.
Ogni agenzia ha un proprio titolare ed è autonoma - Le presenti informazioni non costituiscono elemento contrattuale.

Mostra tutto

Nelle vicinanze

Farmacia Farmacia
Farmacia Castelverde
1,6 Km
Bar Bar
Bar i Portici
1,5 Km
Bar La Pesa
1,6 Km
Bar La Brasiliana
1,6 Km
Ristoranti Ristoranti
Pazzi di Pizza
1,7 Km
Trattoria da Franca e Luciano
2,1 Km
Mostra tutto

Caratteristiche

Rif.:
61146302
Piano:
Terra di 2
Totale piani:
2
Box:
1
Posti auto:
1
Camere da letto:
1
Mostra tutto
Prezzo Prezzo
€ 105.000
Rata mutuo Rata mutuo
€ 489 / mese
Spese annue Spese annue
€ 600
Proponi il tuo prezzoProponi il tuo prezzo

Classe Energetica

B
B
B
B
B
B
B
B
B
EP globale non rinnovabile:
70.45 kW h/m² anno
EP globale rinnovabile:
16.12 kW h/m² anno
EP invernale del fabbricato:
EP estiva del fabbricato:
Anno di costruzione:
2022
Riscaldamento:
Autonomo
Tipo impianto:
A pavimento
Tipo alimentazione:
Metano

Ti interessa visionare l'immobile?

Fissa un appuntamento  Fissa un appuntamento

Richiedi informazioni

Clicca su Leggi per aprire l'informativa
* Questi campi sono obbligatori

Calcola il tuo mutuo

Semplice e senza impegno
Anticipo

( % )
Mutuo

( % )

pochi semplici passi

inserisci i tuoi dati
Questionario completato
Grazie per aver richiesto un appuntamento senza impegno con un nostro Consulente del Credito e Assicurativo.

Hai inserito correttamente tutti i dati necessari e a breve riceverai una e-mail con un link da convalidare per inviare i tuoi dati.
Affiliato
Cremona Tre Sas
Via Ghinaglia, 95/B 26100 Cremona (CR)

Il nostro staff


  • Nicoletta Poli
    Coordinatrice

  • Guido Pedrini
    Collaboratore

  • Omar Monza
    Collaboratore

  • Roberto Talamazzi
    Affiliato
Via Ghinaglia, 95/B 26100 Cremona (CR)
Zona: Piazza Castello-C.so Garibaldi-S.Ambrogio
Mostra su mappa
Orari: dal lunedì al venerdì 9.00-12.30 - 14.00-19.30 sabato 9.00-12.30
Affiliato
Cremona Tre Sas
Via Ghinaglia, 95/B 26100 Cremona (CR)

2025 Tecnocasa Franchising S.p.A. - P. IVA 08365160152 - Via Monte Bianco 60/A 20089 Rozzano (MI). Ogni agenzia ha un proprio titolare ed è autonoma. Privacy policy | Policy utilizzo | Cookie policy